Article    Peer-Reviewed

How Has the Pandemic Reshaped Our Living Spaces? Architectural Strategies and Planning Elements from South Korea’s Apartment Design Competitions

Ga-won Song 1,†, Eunhwa Yang 2,† and Cheol-Jae Yoon 3,†,*
1
School of Architecture, Kyungpook National University, Daegu 41566, Republic of Korea
2
School of Building Construction, College of Design, Georgia Institute of Technology, Atlanta, GA 30332, USA
3
School of Architecture, Kyungpook National University, Daegu 41566, Republic of Korea
These authors contributed equally to this work.
*
For correspondence.
Academic Editor:
Highlights of Sustainability, 2025, 4(4), 299–328.
Received: 26 June 2025    Accepted: 27 November 2025    Published: 23 December 2025
Abstract
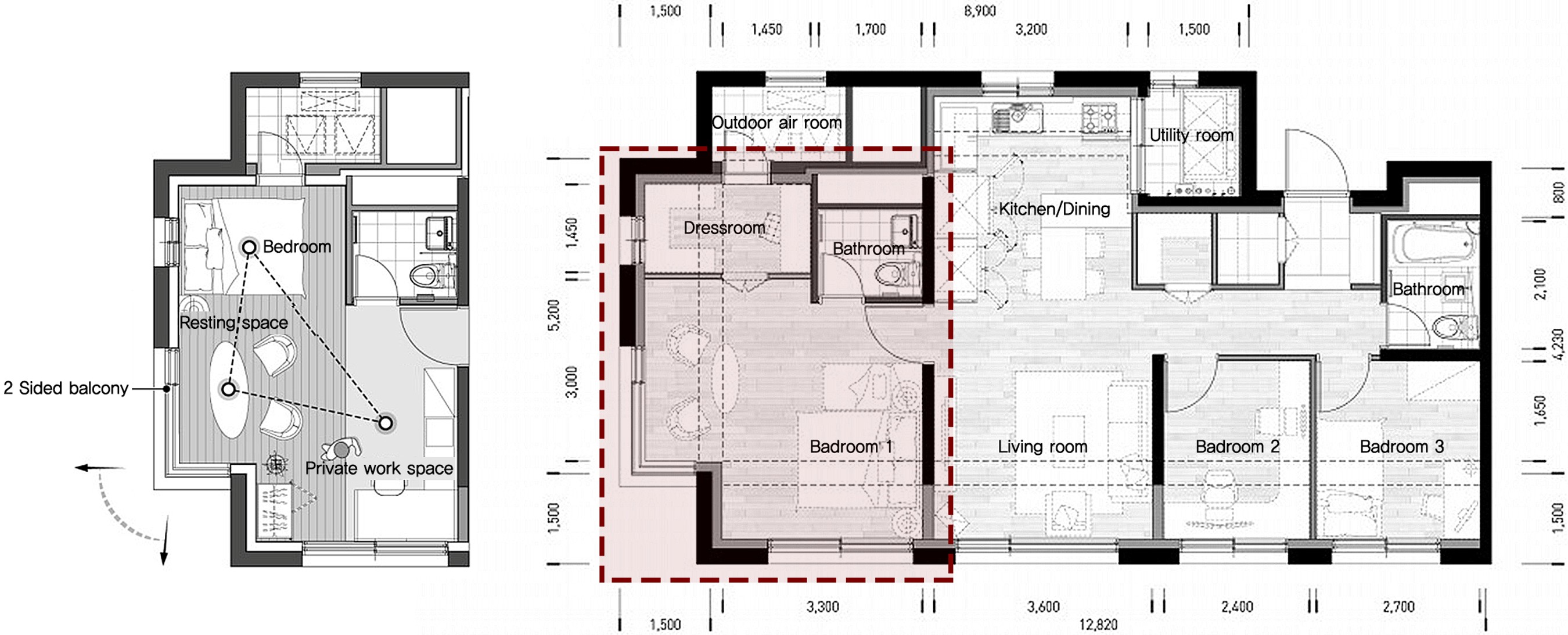
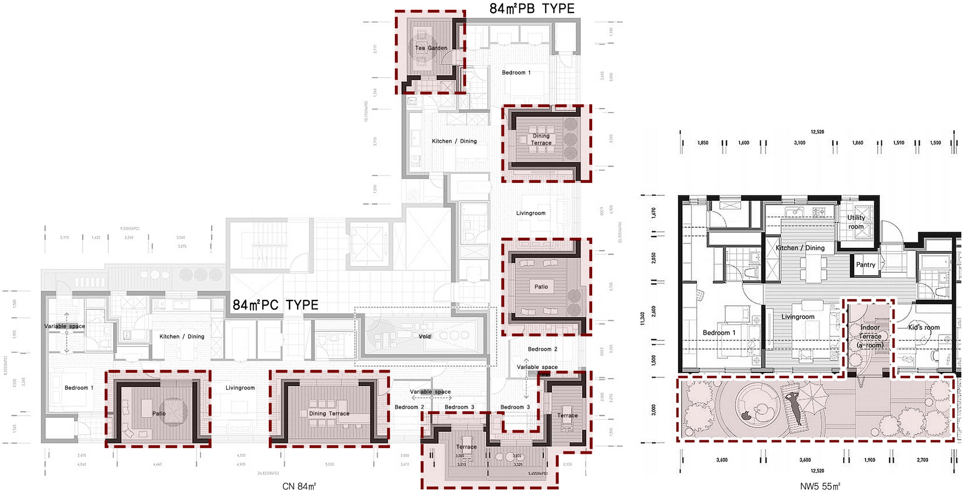
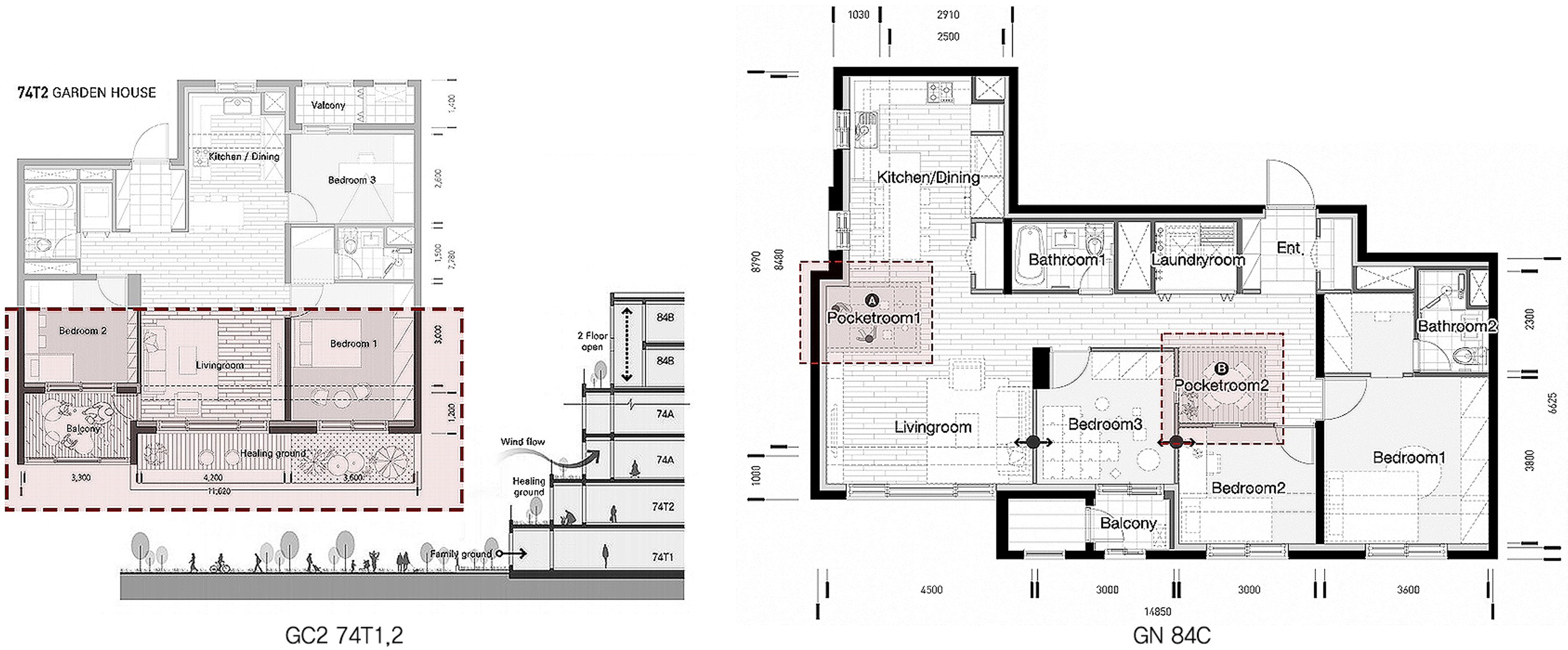
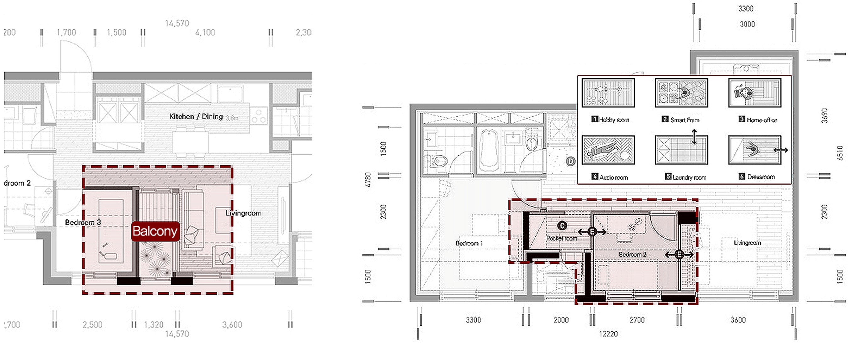
This study investigates the architectural responses within South Korean apartment housing in the context of the COVID-19 pandemic, focusing on residential units. Since 2020, the pandemic has had a substantial impact on residential spaces, resulting in increased time spent at home, a heightened awareness of personal hygiene, and greater household supply needs associated with self-quarantine. This study analyzes spatial changes in residential unit design by examining proposals submitted to architectural competitions in South Korea that specifically addressed design responses to the pandemic. The analysis is structured around 1) planning elements directly suggested in the design proposals, 2) spatial changes corresponding to unit size, and 3) modifications centered on individual rooms within units. The most frequently proposed planning elements for residential spaces are then identified. Based on this, the study determines the needs of most people in residential spaces and the required planning elements for each area and room according to apartment type and room. The results provide strategic insights into enhancing hygiene, convenience, and spatial efficiency in living environments. This highlights the need for flexible spatial adaptations to maintain safe and comfortable living conditions amidst unpredictable future health crises.
Figures in this Article
Keywords
Copyright © 2025 Song et al. This article is distributed under the terms of the Creative Commons Attribution License (CC BY 4.0), which permits unrestricted use and distribution provided that the original work is properly cited.
Funding
This research received no specific grant from any funding agency in the public, commercial, or not-for-profit sectors.
Cite this Article
Song, G.-w., Yang, E., & Yoon, C.-J. (2025). How Has the Pandemic Reshaped Our Living Spaces? Architectural Strategies and Planning Elements from South Korea’s Apartment Design Competitions. Highlights of Sustainability, 4(4), 299–328. https://doi.org/10.54175/hsustain4040018
References
1.
WCCO Staff. (25 April 2023). Survey shows nearly two-thirds of Americans stay home more now than before pandemic. CBS NEWS. http://www.cbsnews.com/minnesota/news/survey-shows-nearly-two-thirds-of-americans-stay-home-more-now-than-before-pandemic (accessed 2 December2024).
2.
Eyler, A. A., Schmidt, L., Beck, A., Gilbert, A., Kepper, M., & Mazzucca, S. (2021). Children’s physical activity and screen time during COVID-19 pandemic: a qualitative exploration of parent perceptions. Health Behavior and Policy Review, 8(3), 236–246. https://doi.org/10.14485/hbpr.8.3.5
3.
Zhan, R. (2023). An Overview of Trends in Architectural Space After COVID-19. In 2023 2nd International Conference on Social Sciences and Humanities and Arts (SSHA 2023) (pp. 707–713). Atlantis Press. http://www.atlantis-press.com/proceedings/ssha-23/125988668 (accessed 11 February 2025).
4.
Chol, J. K. (2021). A Study on the Development Method of Apartment Housing Planning Act on infectious diseases (In Korean) [Master’s thesis]. Graduates School of Chung Ang University.
5.
Kim, J. S. (2021). Improvement Direction for Spatial Planning of Shared Housing Responding to the Pandemic: Focused on Private Rental Housing for Young Adults in Single-Person households in Seoul (In Korean) [Master’s thesis]. Graduates School of Hanyang University.
6.
Chun, K. S., Lee, M. S., & Chol, G. B. (2022). Reconstruction of Residential Space in the Post-Covid era (In Korean). Journal of Korean Cultural Space Architecture Society, 78, 94–101.
7.
Kim, M. K., Park, E. C., & Kim, E. J. (2022). Analysis of prior research studies to develop guidelines for apartment housing planning in response to infectious disease disasters (In Korean). Korean Association of Human Ecology, 31, 275–288.
8.
Lu, S., Lau, R., Leung, H. H., & Yan, G. (2023). Assessment of the change in design strategy of apartment buildings in the post-COVID-19 pandemic era. Buildings, 13, 2949. https://doi.org/10.3390/buildings13122949
9.
Khalfan, M., Karajica, L., & Almadhoob, H. (2022). The impact of COVID-19 on the design of apartment buildings: a case study of Bahrain. In 6th Smart Cities Symposium (SCS 2022) (Vol. 2022, pp. 62–67). IET.
10.
Özer Yaman, G., Erturan, E., & Yıldırım Ateş, A. Y. Ş. E. (2021). Changes in apartment and site type houses during COVID-19 pandemic. ICONARP International Journal of Architecture and Planning, 2(9). 584–610. http://doi.org/10.15320/iconarp.2021.173
11.
Shim, W. (10 January 2019). [Weekender] How Seoul became apartment-ized. The Korea Herald. http://www.koreaherald.com/view.php?ud=20190110000299 (accessed 7 December 2024).
12.
Prins, A. (2022). From Hanok to Today’s Apartment: How Standardized South Korean Homes Provide Residents a Free Hand. International Institute for Asian Studies. https://www.iias.asia/the-newsletter/article/hanok-todays-apartment-how-standardized-south-korean-homes-provide-residents (accessed 12 December 2024).
13.
KCC Color Design Center. (1 September2016). Trends in Korea Apartment Buildings Over Time (In Korean). https://kcccolorndesign.com/entry/%ED%95%9C%EA%B5%AD-%EC%95%84%ED%8C%8C%ED%8A%B8%EC%9D%98-%EC%8B%9C%EB%8C%80%EB%B3%84-%ED%9D%90%EB%A6%84 (accessed 10 February 2025).
14.
HDEC Newsroom. (14 September 2021). History of Korean Apartments through the Hyundai E&C Apartments. https://en.hdec.kr/en/newsroom/news_view.aspx?NewsSeq=374&NewsType=FUTURE%20&NewsListType=news_clist (accessed 13 January 2025).
15.
MOLIT, Republic of Korea. (17 July 2024). Article 2 and 6 of the Housing Act (In Korean). https://law.go.kr/%EB%B2%95%EB%A0%B9/%EC%A3%BC%ED%83%9D%EB%B2%95 (accessed 14 January 2025).
16.
Shin, W.-K. (2021). A Study on the Discourse and Concept of National Housing in the 1950s and 1970s. Journal of the Architectural Institute of Korea, 37(4), 105–116. https://doi.org/10.5659/JAIK.2021.37.4.105
17.
Choi, K. J., & Jihn, J. (2015). A Study on the Change of the Apartment Unit Plan in National Housing: Focused on Institutional and Social Changes. Journal of the Korean Housing Association, 26, 123–131. https://doi.org/10.6107/JKHA.2015.26.5.123
18.
Korea Land & Housing Corporation. Contest Information (In Korean). https://www.lh.or.kr/board.es?mid=a10601020000&bid=0034 (accessed 22 December 2025).
19.
Wiki Korea. (3 July 2018). Hyundai Engineering & Construction prevents contaminants from entering the entrance… Development of ‘H-Clean Entrance’ (In Korean). http://www.wikileaks-kr.org/news/articleView.html?idxno=26948 (accessed 10 December 2024).
20.
MOLIT, Republic of Korea. (17 July 2024). Article 2 No.14 of the Enforcement Decree of the Building Act (In Korean). https://law.go.kr/%EB%B2%95%EB%A0%B9/%EC%A3%BC%ED%83%9D%EB%B2%95 (accessed 20 January 2025).
21.
MOLIT, Republic of Korea. (17 July 2024). Article 119, Paragraph1, Item3, Sub-item B of the Enforcement Decree of the Building Act (In Korean). https://law.go.kr/%EB%B2%95%EB%A0%B9/%EC%A3%BC%ED%83%9D%EB%B2%95 (accessed 20 January 2025).
22.
Naver Pay Real Estate. (n.a.). Hillstate Dongin Central (ResidentialCommercial Complex) (In Korean). https://new.land.naver.com/complexes/131195?ms=35.871123,128.603602,17&a=APT:ABYG:JGC:PRE&e=RETAIL (accessed 23 January 2025).
23.
Korea Land & Housing. Public Housing Design Competition in Korea (In Korean).
Metrics
Loading...
Share
Journal Menu
Journal Contact
Highlights of Sustainability Editorial Office
Highlights of Science
Avenida Madrid, 189-195, 3-3
08014 Barcelona, Spain
Email: sustainability@hos.pub
Tel: +34 93 138 23 89
Ms. Cathy Wang
Managing Editor
Submit Your Article Become a Reviewer
Highlights of Sustainability, ISSN 2696-628X. Published quarterly by Highlights of Science.
Highlights of Sustainability
Highlights of Sustainability Editorial Office
Highlights of Science
Avenida Madrid, 189-195, 3-3
08014 Barcelona, Spain
Email: sustainability@hos.pub
Tel: +34 93 138 23 89
Ms. Cathy Wang
Managing Editor
Submit Article
Subscribe to read the latest articles and newsletters from Highlights of Science.